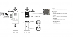
Sampling System

페이지 정보

Byproduct Gas Primary Sampler 조회 106

옵션표

  • Part Number
    HS-BGPS-XX(01/02/03/04)
    (*01 - COG / 02 - LDG / 03 - BFG / 04 - FOG)
  • Item Name
    Byproduct Gas Primary Sampler
  • Description
    본 장치는 부생가스 내 타르, 나프탈렌 등 불순물을 효율적으로 제거하고, 발생되는 응축수를 안정적으로 분리·배출하기 위한 전처리 장치입니다. 또한 Cooler Module, Mist Eliminator 및 Timer Purge System을 적용하여 장기간 안정적인 운전이 가능하며, 유지관리 편의성을 향상시킬 수 있습니다.

본문

제품 개요


본 시스템은 Cooler Module을 적용하여 샘플 가스를 냉각시키고, 냉각 과정에서 발생하는 응축수를 통해 타르 등 응축성 불순물을 효과적으로 분리·제거합니다.

내부에 설치된 Mist Eliminator는 미세 입자 및 미스트를 포집하여 후단 설비의 오염을 방지합니다. 응축수는 Level Switch(Float Switch)를 통해 수위를 감지한 후 자동으로 배출되도록 설계되어 있습니다.

Timer Purge System을 적용하여 Steam 및 N2 Gas를 이용한 내부 Purge 및 세정이 가능하며, 현장 운전 조건에 따라 Water 세정 방식도 추가 적용할 수 있습니다


장치 기능

1. 냉각 및 응축 분리 기능

  • Cooler Module을 통해 샘플 가스를 냉각하여 타르(Tar), 나프탈렌(Naphthalene) 등 응축성 불순물을 응축시키고, Mist Eliminator에서 미스트 및 미세 액적을 효과적으로 포집합니다.

  • 발생된 응축물은 Knock Out Pot으로 유입되며, 운전 조건에 따라 자동 또는 수동으로 배출이 가능합니다.

2. 자동 드레인 시스템

  • Level Switch(Float Switch)를 통해 Knock Out Pot 내 수위를 감지하며, 감지 신호에 따라 Solenoid Valve 및 Drain Pump를 자동으로 제어하여 응축수를 배출합니다.

3. Timer Purge Cleaning System

  • Steam 및 N2 Gas를 이용하여 내부를 자동으로 Purge 및 세정할 수 있습니다.

  • 또한 필요 시 현장 조건에 따라 Water를 이용한 세정 방식도 적용 가능합니다.